Multifunktionaler Dorfplatz Harsweg

Projektdaten
-
Status:abgeschlossen
-
Ort:Emden
-
Projektträger:Stadt Emden
-
Laufzeit:09/2023 – 05/2025
-
LEADER-Förderung247.022 Euro
Ziele
- Stärkung des sozialen Zusammenhalts durch einen attraktiv gestalteten Treffpunkt für alle Generationen
LEADER-Finanzierung
- Gestaltung des multifunktionalen Platzes für Jung und Alt
- überdachte und gepflasterte Fläche mit Informationstafeln und Sitzmöglichkeiten
- Solitärbaum mit einer Rundbank für ungezwungenes Klönen
- Hecken und Baumanpflanzungen zum Markieren der Raumstrukturen mit ökologischem Beitrag, Spielmöglichkeiten auf Rasen- und gepflasterten Flächen
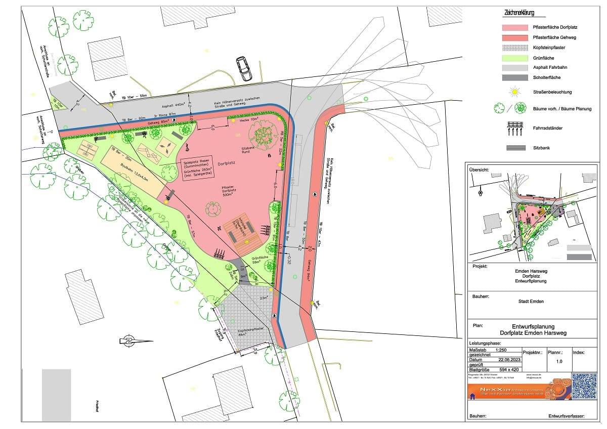
Der in 2025 fertiggestellte Dorfgemeinschaftsplatz liegt inmitten des historischen Siedlungsbereiches Harsweg in Emden. Hier leben ca. 1.000 Menschen. Ziel des Projektes war es, den sozialen Zusammenhalt durch einen attraktiv gestalteten Treffpunkt für alle Generationen zu stärken.
Die ca. 1.500 m² große Freifläche wurde über die LEADER-Förderung zu einem multifunktionalen Platz für Jung und Alt sowie für zahlreiche gemeinschaftliche Veranstaltungen gestaltet und hergerichtet. Im Mittelpunkt des Platzes gibt es eine wetterunabhängige, überdachte und gepflasterte Fläche mit Informationstafeln und Sitzmöglichkeiten. Ein Solitärbaum mit einer Rundbank lädt zum ungezwungenen Klönen ein. Hecken und Baumanpflanzungen markieren die Raumstrukturen und leisten einen ökologischen Beitrag. Spielmöglichkeiten auf Rasen- und gepflasterten Flächen machen den Verweilplatz zu einem attraktiven, sozialen Mittelpunkt.
Der Dorfplatz wurde offiziell und feierlich am 27. Juni 2025 eingeweiht. Im Rahmen der Zeremonie, die Oberbürgermeister Tim Kruithoff vorgenommen hat, erfolgte die feierliche Umbenennung des Platzes in „Cohenplatz“. Die Benennung des Dorfplatzes erfolgte zu Ehren der jüdischen Familie Cohen, die von 1872 bis zur Verbringung in das Konzentrationslager Sachsenhausen im Zuge der Novemberpogrome 1938 bzw. bis zum durch die Nationalsozialisten erzwungenen Verkauf der familieneigenen Villa und dem anschließenden Umzug in das jüdische Altersheim als angesehene Familie in Harsweg lebte. Mit der Umbenennung des Platzes hat die Stadt Emden ein Zeichen des Gedenkens, der Anerkennung und des Respekts gesetzt.
Der Platz wird von den Harsweger Bürger: innen sehr gut angenommen, insbesondere vom Harsweger Bürgerverein e. V. und dem OBW Ostfriesische Beschäftigungs- und Wohnstätten GmbH. Im Verein sind viele junge Menschen, die gerne aktiv sind und noch viel machen möchten. Insgesamt sind, ob jung ob alt, alle sehr zufrieden. Dies ist darauf zurückzuführen, dass die Stadt den Verein und die OBW von Beginn an in die Planungen zur Platzgestaltung mit einbezogen hatte. Das Projekt erhielt in der Entstehungs- aber auch in der Umsetzungsphase große Unterstützung durch die Mitarbeiter:innen der Stadt Emden.
Auch eine Boolebahn wurde auf dem Dorfplatz angelegt. Dies ist in Emden Volkssport. Da der Dorfplatz öffentlich zugänglich ist, können sich auch Menschen aus anderen Ortsteilen an dem Mehrgenerationentreffpunkt erfreuen.


